VRF Systems Indoor Unit High Static Pressure Duct
Model
| 220-240V Single-Phase | |
|---|---|
| ARGC45GATH | |
| ARGC60GATH | |
| ARGC72GATH | |
| ARGC90GATH | |
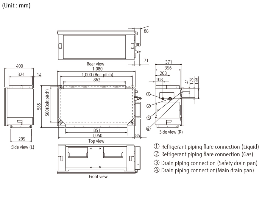
Dimensions
Models: ARGC45 / ARGC60
Models: ARGC72 / ARGC90
Feature
Easy installation (Compact size & Lightweight)
A compact size and lightweight indoor unit has been developed by reducing the basic chassis and the overall material weight.
Static pressure selection
Models : ARGC72 / ARGC90
2 Types of static pressure mode are selectable.(Max. 300 Pa)
High Static Pressure Duct (ARGC72)
The adoption of a single phase fan motor allows 3 steps fan speed control
Low noise
Models : ARGC45 / ARGC60
Cutting off the corners of the conventional indoor unit front panel and fan casing, has enabled less turbulent air flow. Low noise is realized by adopting a plastic case and a plastic fan.
Installation styles
Optional parts
- Long-Life Filter :
- UTD-LF60KA (For ARGC45/60GATH)
- IR Receiver Unit :
- UTB-YWC
- Remote Sensor Unit :
- UTY-XSZX



