VRF Systems Indoor Unit Floor / Ceiling
- Download :
-
Catalog
Model
| 220-240V Single-Phase | |
|---|---|
| ABGA12GATH | |
| ABGA14GATH | |
| ABGA18GATH | |
| ABGA24GATH | |
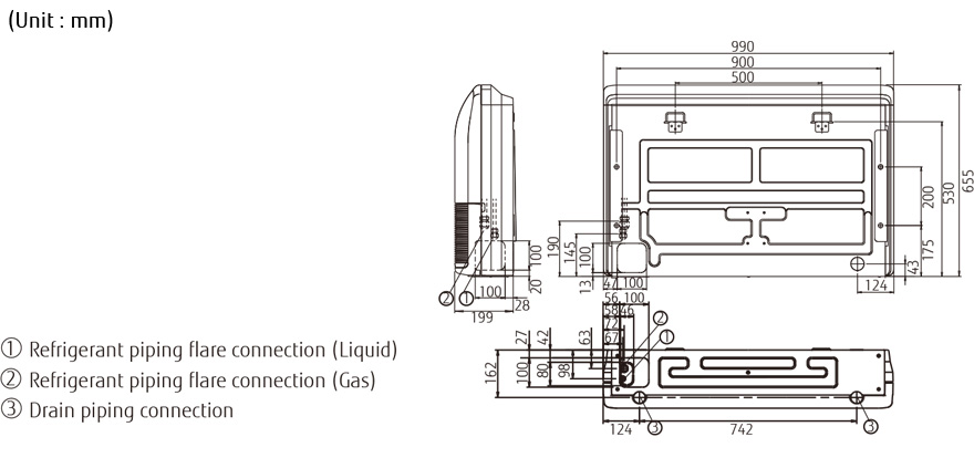
Dimensions
Feature
Flexible installation
Example for floor installation
Floor console
Example for ceiling installation
Under ceiling
Double auto swing
A combination of up/down and right/left directional swing allows three-dimensional air direction control.
RIGHT and LEFT SWING
UP and DOWN SWING
4 steps selectable
High power DC fan motor
- High power
- Wide rotation range
- High efficiency
Compact design
Symmetrical, slim and compact design.
Auto-closing louver
When operation is stopped, the louvers will automatically close.
(This function is available on all non-ducted models.)
Super vane
Double Louver Super vane with newly developed special configuration boosts airflow sending cool air quickly to every corner of the room.



