One-way Flow Cassette AUXV024GLEH
Specifications
| Power Source | Phase | Single phase | |
|---|---|---|---|
| Voltage | 230 V | ||
| Frequency | 50 Hz | ||
| Capacity | Cooling | 7.1 kW | |
| Heating | 8.0 kW | ||
| Input Power | 99 W | ||
| Airflow Rate | Cooling | High | 1150 m³/h |
| Medium High | 1020 m³/h | ||
| Middle | 940 m³/h | ||
| Low High | 790 m³/h | ||
| Low | 700 m³/h | ||
| Quiet | 610 m³/h | ||
| Heating | High | 1150 m³/h | |
| Medium High | 1020 m³/h | ||
| Middle | 940 m³/h | ||
| Low High | 790 m³/h | ||
| Low | 700 m³/h | ||
| Quiet | 610 m³/h | ||
| Sound Pressure Level*2 | Cooling | High | 49 dB(A) |
| Medium High | 47 dB(A) | ||
| Middle | 45 dB(A) | ||
| Low High | 42 dB(A) | ||
| Low | 39 dB(A) | ||
| Quiet | 36 dB(A) | ||
| Heating | High | 49 dB(A) | |
| Medium High | 47 dB(A) | ||
| Middle | 45 dB(A) | ||
| Low High | 42 dB(A) | ||
| Low | 39 dB(A) | ||
| Quiet | 36 dB(A) | ||
| Net Dimensions | Height | 198 mm | |
| Width | 1190 mm | ||
| Depth | 570 mm | ||
| Net Weight | 27.0 kg | ||
| Connection Pipe Diameter | Liquid (Flare) | φ9.52 mm | |
| Gas (Flare) | φ15.88 mm | ||
| Drain Hose Diameter | φ25(I.D.), φ32(O.D.) mm | ||
Scroll
- *2.
- The noise value is the value when measured in an anechoic room. When measured in the actual installed state,surrounding noise and reflections are received and the measured value is usually larger than the indicated value.
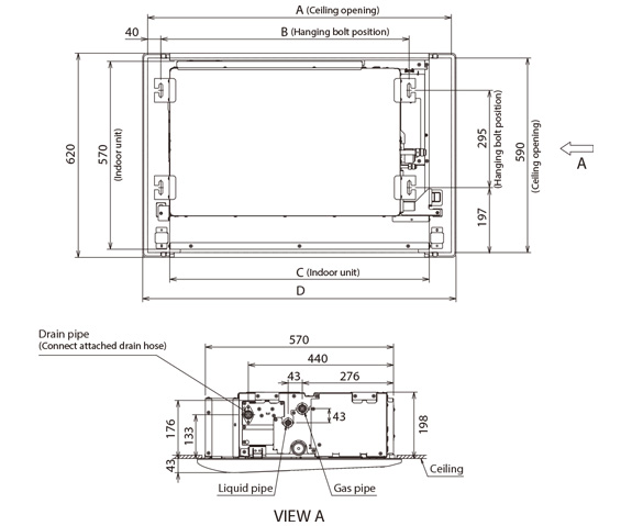
Dimensions
Indoor Unit : AUXV024GLEH

Optional parts
- Wireless LAN Interface :
- UTY-TFSXZ1
- IR Receiver Unit :
- UTY-TRHX
- Cassette Grille :
- UTG-UNGA-W / UTG-UNGB-W
- External Power Supply Unit :
- UTZ-GXXA
India | English