VRF Systems VC-V Series AJG432JATAH
- Outdoor Unit :
- AJG162JATAH
- Outdoor Unit :
- AJG144JATAH
- Outdoor Unit :
- AJG126JATAH
- Download :
-
Catalogues
Features
- High ambient operation design
- Energy-saving technologies for boosting operational efficiency
- Elaborate anti-corrosion treatment
- Outstanding cooling capacity
Specifications
| Rated Capacity Range | 48 HP |
|---|---|
| Max. Number of Connectable Indoor Units*1 | 3 - 64 |
| Connectable Capacity of Indoor Units | 67.5 - 202.5 kW |
Scroll
| Power Source | Phase | 3 phase |
|---|---|---|
| Voltage | 380-415(50Hz),400(60Hz) V | |
| Frequency | 50/60 Hz | |
| Capacity | Cooling | 135.0 kW |
| Input Power | Cooling | 35.45 kW |
| EER | Cooling | 3.81 W/W |
| Airflow Rate | 16800 + 13700 + 13700 m³/h | |
| Sound Pressure Level*2 | Cooling | 68 dB(A) |
| Max. External Static Pressure | 82 Pa | |
| Compressor Motor Output | 6.2 x 1 + 4.7 x 1 + 4.7 x 1 kW | |
| Heat Exchanger Fin | Blue fin | |
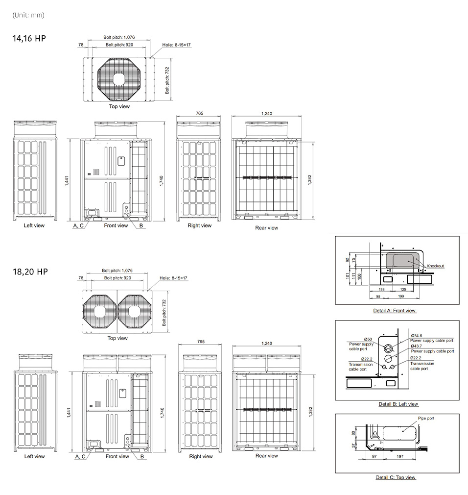
| Net Dimensions Height X Width X Depth |
1740 x 1240 x 765 mm
1740 x 1240 x 765 mm 1740 x 1240 x 765 mm |
|
| Net Weight |
255 kg
232 kg 232 kg |
|
| Refrigerant | Type | R410A |
| Charge |
11.8 kg
11.8 kg 11.8 kg |
|
| Connection Pipe Diameter | Liquid | φ19.05 mm |
| Gas | φ41.27 mm | |
| Operation Range | Cooling | 10 to 55 °CDB |
Scroll
Dimensions
Outdoor Unit : AJG162JATAH / AJG144JATAH / AJG126JATAH

India | English