Salvaspazio a pompa di calore Serie J-IV AJH054LBLDH
Caratteristiche
- Efficienza durante il funzionamento effettivo
- Grande lunghezza delle tubazioni
- Possibilità di collegare fino a 14 unità*
Potenza
Specifiche
| Gamma di potenza nominale | 6 HP |
|---|---|
| Numero massimo di unità interne collegabili*1 | 1 - 14 |
| Potenza massima delle unità interne collegabili | 7.8 - 23.2 kW |
Scroll
| Alimentazione | Fase | Monofase 1 |
|---|---|---|
| Tensione | 230 V | |
| Frequenza | 50 Hz | |
| Potenza | Raffreddamento | 15.5 kW |
| Nominale Riscaldamento | 15.5 kW | |
| Max. Riscaldamento | 18.0 kW | |
| Potenza assorbita | Raffreddamento | 4.96 kW |
| Riscaldamento | 4.17 kW | |
| Nominale Riscaldamento | 4.17 kW | |
| Max. Riscaldamento | 5.41 kW | |
| EER | Raffreddamento | 3.12 W/W |
| COP | Nominale Riscaldamento | 3.71 W/W |
| Max. Riscaldamento | 3.32 W/W | |
| Portata dell'aria | 7000 m³/h | |
| Livello di pressione sonora*2 | Raffreddamento | 53 dB(A) |
| Riscaldamento | 56 dB(A) | |
| Livello di potenza sonora | Raffreddamento | 67 dB(A) |
| Riscaldamento | 69 dB(A) | |
| Pressione statica esterna massima | 30 Pa | |
| Potenza nominale del compressore | 3.75 kW | |
| Trattamento scambiatore di calore | Blue fin | |
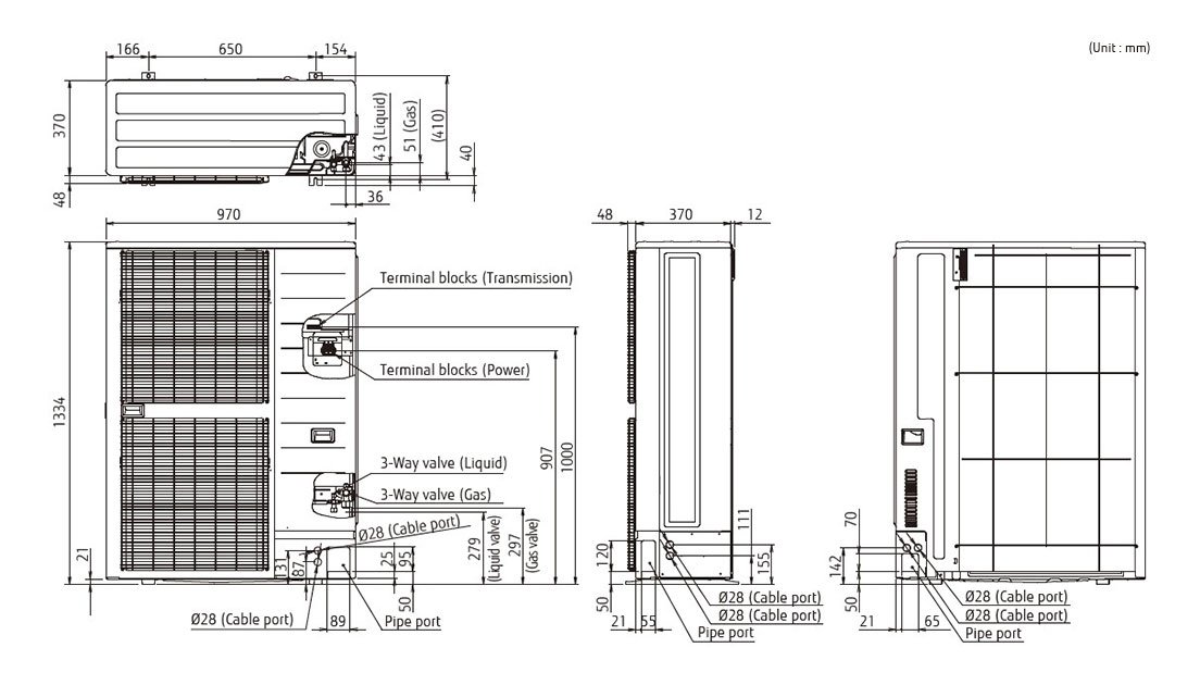
| Dimensioni nette | Altezza | 1334 mm |
| Larghezza | 970 mm | |
| Profondità | 370 mm | |
| Peso netto | 119 kg | |
| Refrigerante | Tipo | R410A |
| GWP | 2088 | |
| Carica | 5.3 kg (11.1 CO2eq–T) | |
| Diametro connessioni | Liquido | φ9.52 mm |
| Gas | φ19.05 mm | |
| Lunghezza totale delle tubazioni | 180 m | |
| Dislivello massimo (Unità esterna: più alta/più bassa) |
50 / 40 m | |
| Range di funzionamento | Raffreddamento | -5 a 46 °CDB |
| Riscaldamento | -20 a 21 °CDB | |
Scroll
- Attenzione:
- Le specifiche si basano sulle seguenti condizioni.
- Raffreddamento:
- Temperatura interna di 27 °CDB/19 °CWB e temperatura esterna di 35° CDB/24° CWB.
- Riscaldamento:
- Temperatura interna di 20 °CDB/15 °CWB e temperatura esterna di 7° CDB/6° CWB.
- Lunghezza delle tubazioni:
- 7,5 m; dislivello tra unità esterna e unità interna: 0 m. La funzione protettiva può attivarsi in caso di utilizzo al di fuori del range di funzionamento previsto.
Dimensioni
Unità esterna : AJH054LBLDH

Italia | Italiano