Modulare a recupero di calore V-IV Series AJH072LALDH [3Fase]
Caratteristiche
- Nuovo controllo intelligente del refrigerante
- Efficiency in actual operating conditions
- The energy-saving technology that boosted operation efficiency
Potenza
Specifiche
| Gamma di potenza nominale | 8 HP |
|---|---|
| Numero massimo di unità interne collegabili*1 | 2 - 17 |
| Potenza massima delle unità interne collegabili | 11.2 - 33.6 kW |
Scroll
| Alimentazione | Fase | Trifase 3N |
|---|---|---|
| Tensione | 400 V | |
| Frequenza | 50 Hz | |
| Potenza | Raffreddamento | 22.4 kW |
| Nominale Riscaldamento | 22.4 kW | |
| Max. Riscaldamento | 25.0 kW | |
| Potenza assorbita | Raffreddamento | 5.95 kW |
| Riscaldamento | 5.42 kW | |
| Nominale Riscaldamento | 5.42 kW | |
| Max. Riscaldamento | 6.26 kW | |
| EER | Raffreddamento | 3.76 W/W |
| COP | Nominale Riscaldamento | 4.13 W/W |
| Max. Riscaldamento | 3.99 W/W | |
| Portata dell'aria | 11100 m³/h | |
| Livello di pressione sonora*2 | Raffreddamento | 58 dB(A) |
| Riscaldamento | 59 dB(A) | |
| Livello di potenza sonora | Raffreddamento | 79 dB(A) |
| Riscaldamento | 80 dB(A) | |
| Pressione statica esterna massima | 82 Pa | |
| Potenza nominale del compressore | 7.5 kW | |
| Trattamento scambiatore di calore | Blue fin | |
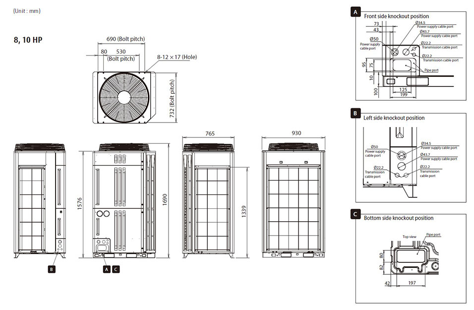
| Dimensioni nette | Altezza | 1690 mm |
| Larghezza | 930 mm | |
| Profondità | 765 mm | |
| Peso netto | 252 kg | |
| Refrigerante | Tipo | R410A |
| GWP | 2088 | |
| Carica | 11.7 kg (24.4 CO2eq–T) | |
| Diametro connessioni | Liquido | φ12.7 mm |
| Gas | φ22.22 mm | |
| Lunghezza totale delle tubazioni | 700 m | |
| Dislivello massimo (Unità esterna: più alta/più bassa) |
50 / 40 m | |
| Range di funzionamento | Raffreddamento | -15 a 46 °CDB |
| Riscaldamento | -20 a 21 °CDB | |
Scroll
- Attenzione:
- Le specifiche si basano sulle seguenti condizioni.
- Raffreddamento:
- Temperatura interna di 27 °CDB/19 °CWB e temperatura esterna di 35° CDB/24° CWB.
- Riscaldamento:
- Temperatura interna di 20 °CDB/15 °CWB e temperatura esterna di 7° CDB/6° CWB.
- Lunghezza delle tubazioni:
- 7,5 m; dislivello tra unità esterna e unità interna: 0 m. Quando si avvia la modalità di raffreddamento con temperature esterne inferiori a -5 °C, l'unità esterna deve essere installata allo stesso livello o in posizione sopraelevata rispetto alle unità interne.
Dimensioni
Unità esterna : AJH072LALDH

Italia | Italiano